Holme Gardens: a case study and a warning to would-be developers
Our client owned a piece of waste ground at the rear of a commercial building, which for 30 years plus had served no purpose to anyone, except fly tippers.
Back in 2004, we tried to get planning permission for additional parking, which was refused because of concerns over additional traffic. In 2005, we applied for planning permission for two houses, which were refused because of a shortage of parking. Following several consultations with the planning department, we applied for and received planning permission for four flats in 2017.
The reasons for the earlier refusals were never aesthetic but always traffic generation, lack of parking, or the removal of a tree (the Planning Department had put a preservation order on a silver birch soon after the car park refusal). Funding now was the next issue, and it took three years to get the land ownership legally split and then funding in place. This now took us up to the COVID pandemic, which was helpful in that we could make use of the extended time given beyond the stipulated three years to commence building.
The next aspect was to ask the Planning Department to approve the intended bricks. The planners made full use, and beyond, of the two months to give the approval of the bricks, leaving us three days for the builder to get the foundations in the ground, or we would default on the planning condition and so lose the planning approval that was so hard won.
In the meantime, we dealt with the contaminated soil that had to be removed, the Party Wall Notice, getting electricity and the internet connected, and all items that had to be organised and paid for prior to commencement. We were lucky in that the more recent onerous requirements regarding flooding and net diversity had not yet come into effect.
Our client asked us at this point to get a modified planning approval, separating it from the existing Victorian terrace, to simplify the foundation design – fat chance! The planners refused the modification. Never mind; we found a technical solution to the foundation issue, and work on site commenced.
The project took 18 months to build; quite long for such a project. Apparently, the builder trusted only one bricklayer, and this bricklayer laid every single brick; meticulously, though, I might add. So, it took an inordinate amount of time to get up to plate level. By now, the builder had taken on other jobs to work on in the meantime, so the following activities were pretty slow. On reflection, we should have set a completion date backed up by financial implications for the builder. Still, after waiting so many years to get the project out of the ground, a few extra months to guarantee a good quality build and good client/ builder relations didn’t seem important. Sadly, the workmanship and this relationship weren’t that good either, in the end.
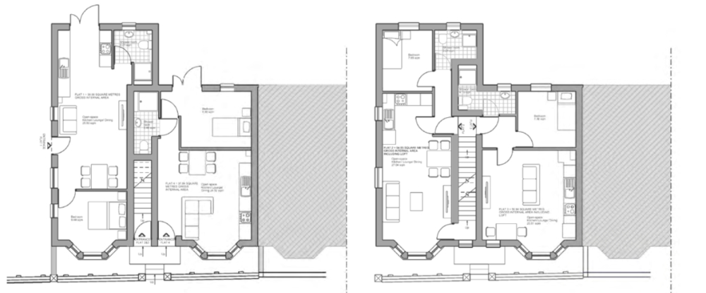
The four flats that make up Holme Gardens were completed in 2023, and if by now you might be thinking, was it worth it? Well, yes, it was.
The project sum was £370k, with extras, demolition (including asbestos removal) and landscaping costs of £25k (amounting to 7%), bringing the total build cost to £395k without professional and statutory fees. Building Tectonics fees are not going to be disclosed here, but when you think of the effort we put in to getting this project built, it was never enough. But that is what we do, and if we were not so diligent, steadfast, and enduring, the development may not have been built. Or it may not have received so many accolades from locals on how the development fits in with the street scene (it fits in so well that many passersby assume they have always been there). We are not the type of practice that wants to set the world on fire with some egotistical design; we are perfectly happy to design four flats that look like two Victorian terrace houses (although it is a bit galling to an architectural practice when many passersby assume that this building has always been there. New flats? What new flats?).
Even with the stonework detailing on the façade, the triple glazing, the passive stack ventilation system, and other energy saving technology, in a building that looks over a century old, the cost works out at just over £2,000 per square metre. For those not in the know, the norm for flats would be at least £2,400 in this location, at this time, and for a small development.
More important perhaps than the monetary numbers to us is the knowledge that we have produced four dwellings for people to come home to. What I did not understand and still do not understand, after half a century of doing this job, is why, oh why, is it so difficult?
This article appeaers in the AT Journal issue AT Journal ISSUE 156 – WINTER 2025 as "Holme Gardens: a case study and a warning to would-be developers" written by Tony Keller FCIAT, Director and Owner, Building Tectonics Ltd.
--CIAT
[edit] Related articles on Designing Buildings
- Avoiding planning permission pitfalls.
- CIOB Planning Protocol 2021.
- Community Infrastructure Levy.
- Consultation process.
- Design and access statements.
- How long does it take to get planning permission.
- How long does planning permission last.
- Outline planning application.
- National Planning Policy Framework.
- Neighbourhood planning.
- Planning appeal.
- Planning fees.
- Planning conditions.
- Planning obligations.
- Planning objection.
- Planning performance agreement.
- Planning permission.
- Pre-application advice.
- Statutory approvals.
- Statutory authorities.
- Town and Country Planning Act.
Featured articles and news
Costs and insolvencies mount for SMEs, despite growth
Construction sector under insolvency and wage bill pressure in part linked to National Insurance, says report.
The place for vitrified clay pipes in modern infrastructure
Why vitrified clay pipes are reclaiming their role in built projects.
Research by construction PR consultancy LMC published.
Roles and responsibilities of domestic clients
ACA Safety in Construction guide for domestic clients.
Fire door compliance in UK commercial buildings
Architect and manufacturer gives their low down.
Plumbing and heating for sustainability in new properties
Technical Engineer runs through changes in regulations, innovations in materials, and product systems.
Awareness of the Carbon Border Adjustment Mechanism
What CBAM is and what to do about it.
The new towns and strategic environmental assessments
12 locations of the New Towns Taskforce reduced to 7 within the new towns draft programme and open consultation.
Buildings that changed the future of architecture. Book review.
The Sustainability Pathfinder© Handbook
Built environment agency launches free Pathfinder© tool to help businesses progress sustainability strategies.
Government outcome to the late payment consultation, ECA reacts.
IHBC 2025 Gus Astley Student Award winners
Work on the role of hewing in UK historic conservation a win for Jack Parker of Oxford Brookes University.
Future Homes Building Standards and plug-in solar
Parts F and L amendments, the availability of solar panels and industry responses.
How later living housing can help solve the housing crisis
Unlocking homes, unlocking lives.
Preparing safety case reports for HRBs under the BSA
A new practical guide to preparing structural inputs for safety cases and safety case reports published by IStructE.
Male construction workers and prostate cancer
CIOB and Prostate Cancer UK encourage awareness of prostate cancer risks, and what to do about it.
























